津市中央学校給食センターは、中学校の給食未実施校を解消し、津市立の全ての中学校で給食を実施するとともに、食教育の向上を図るため建設されました。本給食センターでは、地産地消の推進や食物アレルギーへの対応に取り組んでおり、安全安心でおいしい給食を提供し、津市の将来を担う子どもたちの健全で豊かな心と身体を育てていきます。

平成23年8月
ドライ方式
3318.96平方メートル(1階2370.23平方メートル、2階948.73平方メートル)
調理、配送等業務は民間委託
津、久居地域の中学校12校
鉄骨造一部2階建て
5,300食/日
約17億円
平成23年9月
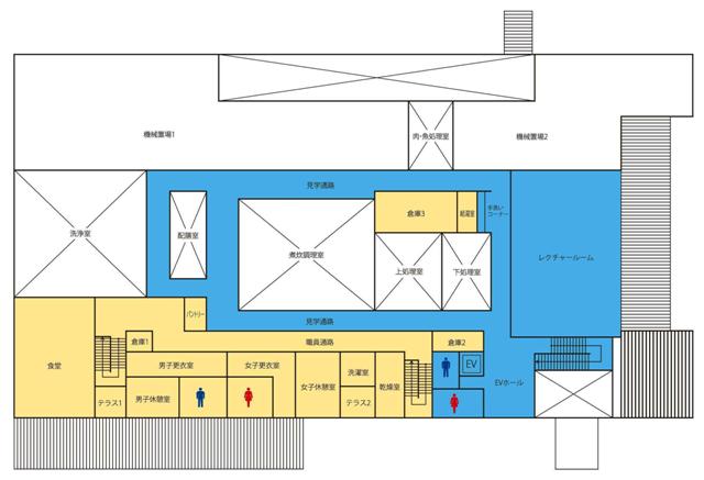
1階平面図(JPG/45KB)
2階平面図(JPG/47KB)
令和7年12月の献立:
(A班(PDF/763KB)・・・豊里・一身田・東橋内・橋南・久居・久居西中学校)
(B班(PDF/763KB)・・・橋北・南が丘・南郊・久居東・西橋内・西郊中学校)
令和7年11月の献立:
(A班(PDF/474KB)・・・豊里・一身田・東橋内・橋南・久居・久居西中学校)
(B班(PDF/474KB)・・・橋北・南が丘・南郊・久居東・西橋内・西郊中学校)
注:献立は変更になる場合があります。 詳しくは、中央学校給食センターまたは各学校へお問い合わせください。
レクチャールームや見学通路の設置
太陽光発電や残飯のたい肥化
施設のランニングコストの低減
教育委員会事務局教育総務課給食担当 津市中央学校給食センター
〒514-1254 津市森町5008-14
電話番号059-253-8801 ファクス059-254-1051
